Tady může stát váš tiny house...
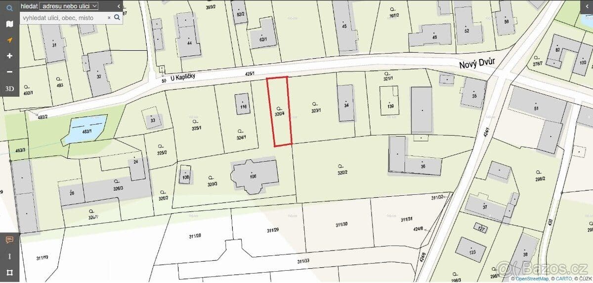
Pozemky vhodné pro umístění tiny domu. K pronájmu nebo koupi. Podívejte se do naší aktuální nabídky, nebo u nás poptejte svůj ideální, který pro vás najdeme.
Aktuálně u nás najdete 417 platných nabídek pozemků.
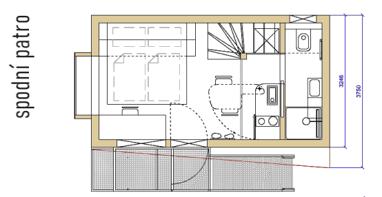
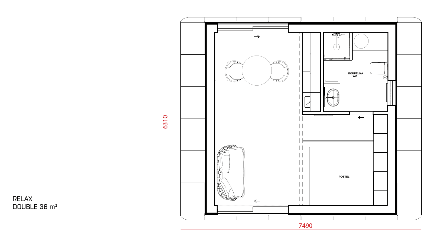
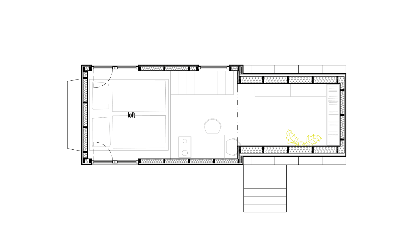
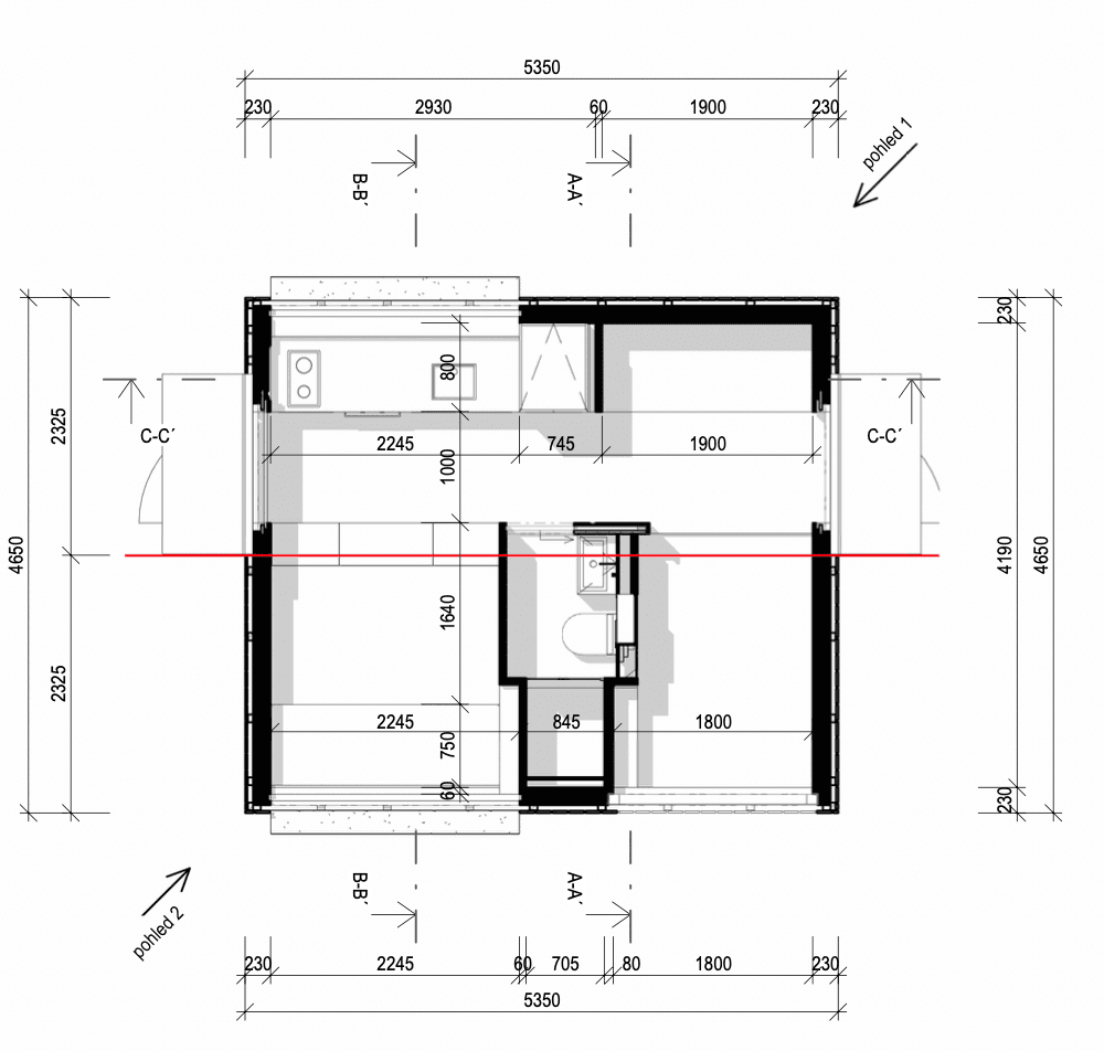
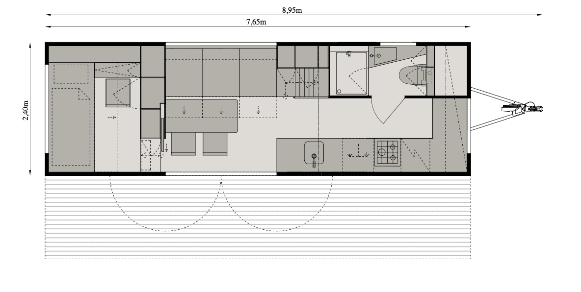
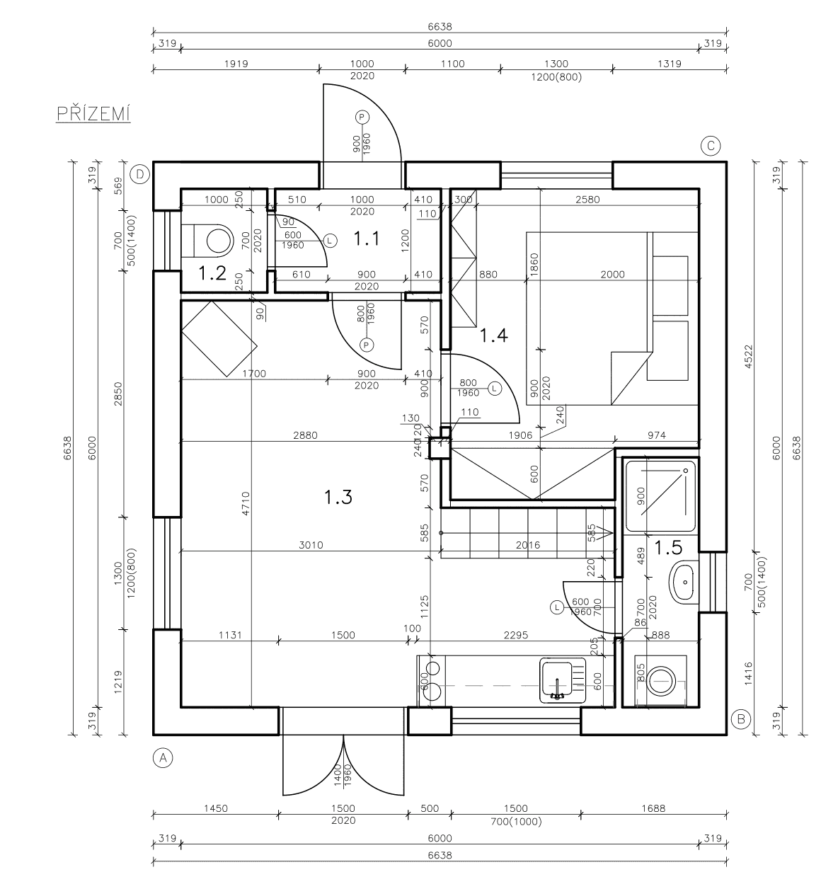
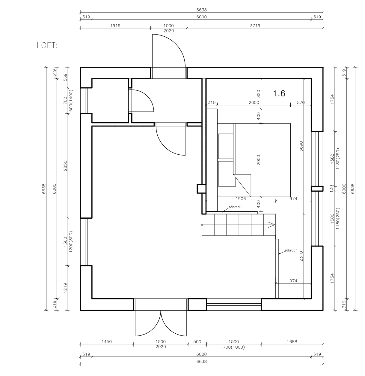
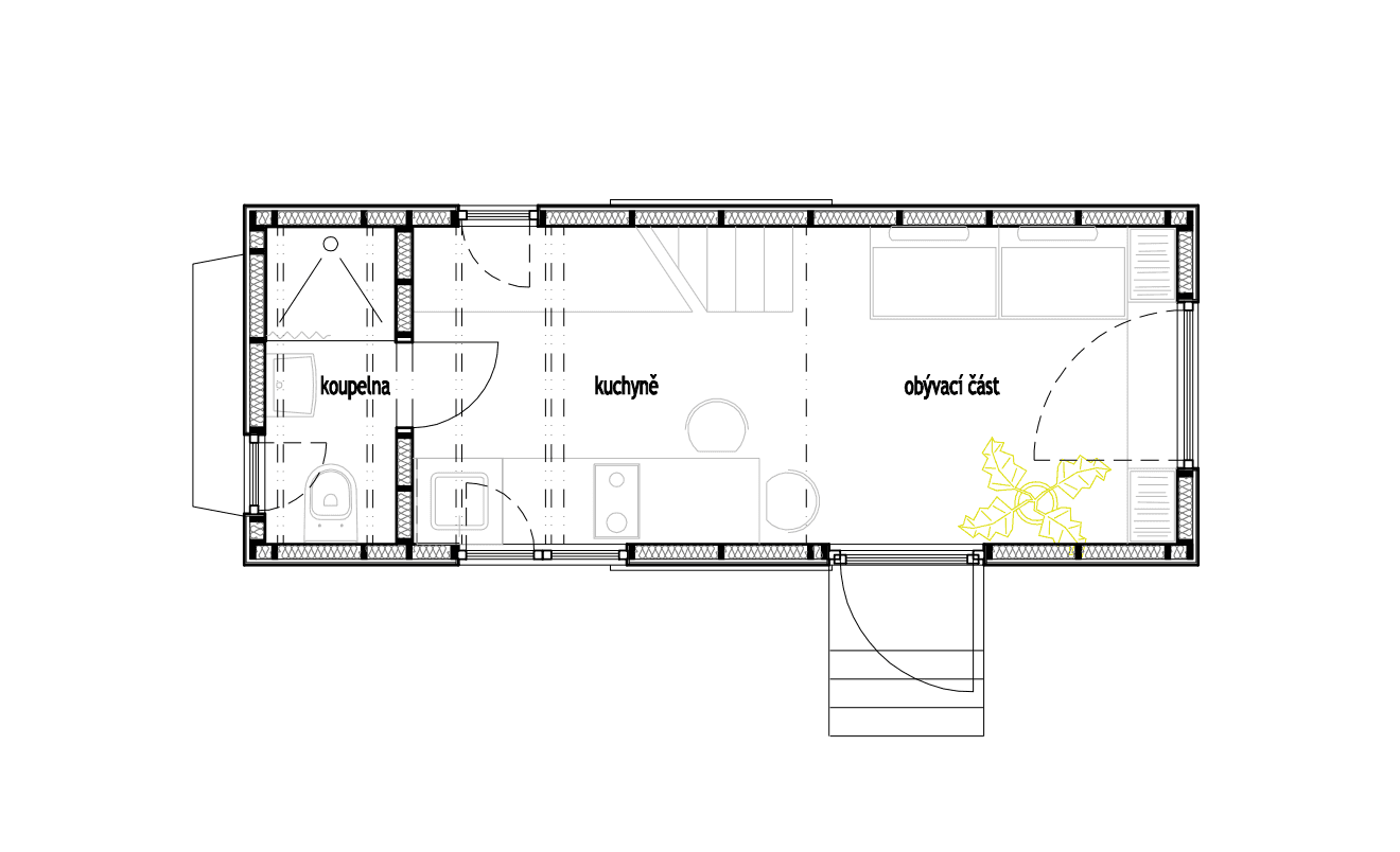
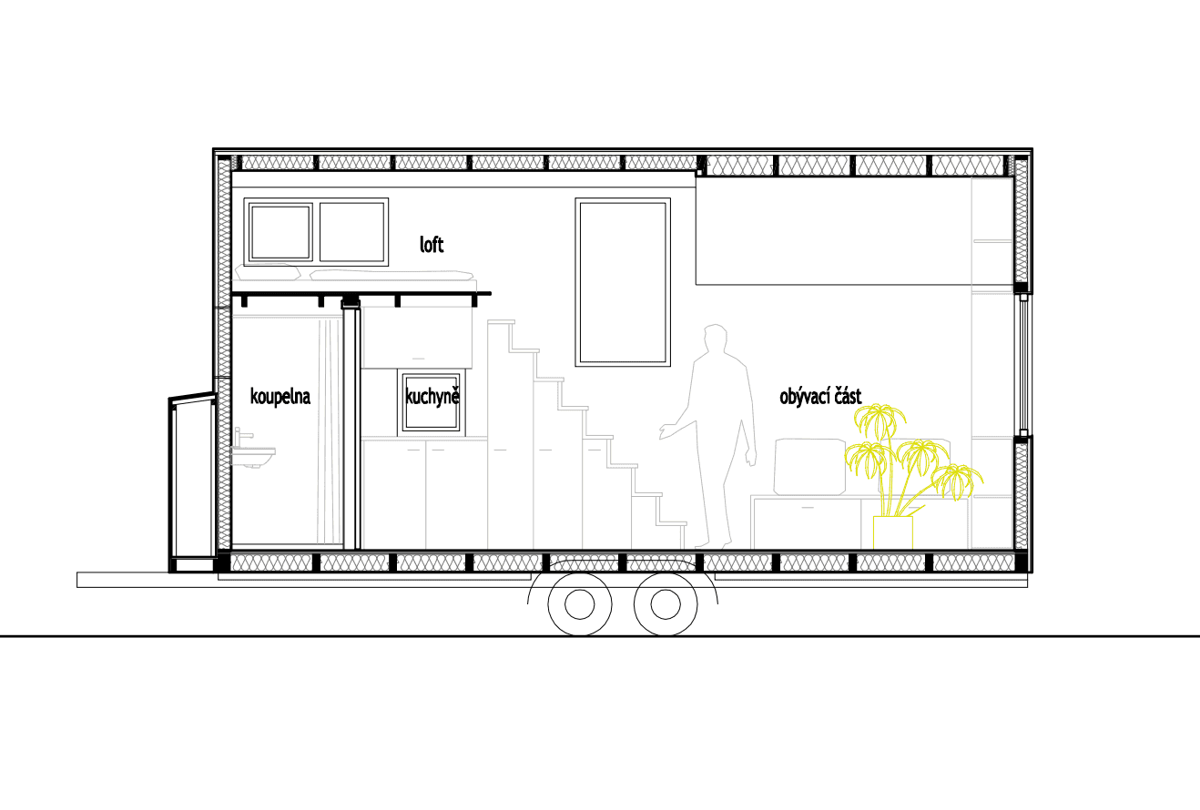
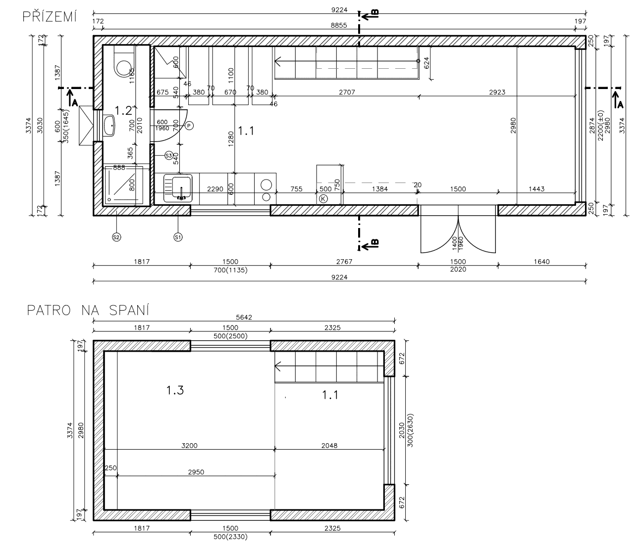
Takhle může vypadat Váš tiny house
Všechny výrobce si vybíráme, jezdíme do výroby, domy prověřujeme a osobně testujeme.
Chcete do světa tiny života proniknout víc?
Nechejte se provést Jankem Sedlářem, který s rodinou v tiny domku přes 2 roky žije. Videokurzy a příběhy minimalistického života.
























































































































































































































